Valmiusaste: Muuttovalmis
Tervetuloa tutustumaan muuttovalmiiseen, moderniin kaksikerroksiseen Jämerä-paritaloon Itä-Pakilaan, Helsinkiin. Tämä täyskivinen talo on rakennettu ylä-, väli- ja alapohjaa myöten kivestä tarjoten paloturvallisuutta ja huolettomuutta asumiseen.
Aika: torstaina 26.2.2026 klo 17.00–19.00
Paikka: Itä-Pakila Helsinki
Paikalla talonäytössä ovat Eva Paukkeri (Noblessa), Meri Kantola (Handyhand) sekä Markku Veikkola (Lammin Ikkunat). Tule keskustelemaan kivitalon suunnittelusta ja rakentamisesta sekä hakemaan vinkkejä omaan taloprojektiisi.
ILMOITTAUTUMINEN PÄÄTTYNYT
Lisätietoja näytöstä: Jämerän myyntiedustaja Päivi Merelä, paivi.merela@jamera.fi, puh. 050 303 6795
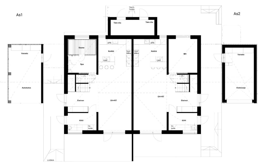
Kohteen tiedot:
As1 4H+K+S+2WC+KHH+VAR
Kerrokset: 2 krs
Huoneistoala:117m²
Kerrosala:144m²+tekn.tila 5m2
Kokonaisala: 144m²+5m2 = 149 m2
Autokatos+var 25 m2
As2 4H+K+S+WC+KHH+VAR
Kerrokset: 2 krs
Huoneistoala:117m²
Kerrosala:144m²+tekn.tila 5m2
Kokonaisala: 144m²+5m2 = 149 m2
Autosuoja+var 25 m2
Pohjakuvat:
1 krs

2 krs

Kuvia kohteesta:

Syötä Kivitalolaskimeemme tarvittavat tiedot ja saat kuluarvion rakentamisen kokonaiskustannuksista.

Rakennetaan yhdessä unelmiesi kivitalo. Jätä yhteystietosi, niin olemme sinuun yhteydessä.
Rakennetaan yhdessä unelmiesi kivitalo.
0800 309 210, myynti@jamera.fi