Valmiusaste: Muuttovalmis
Taloesittely lauantaina 31.1.2026 klo 12.00–14.00
Tervetuloa tutustumaan muuttovalmiiseen Jämerä-kivitaloon Mankkaalle, Espooseen. Kohde on Studio Rosbergin suunnittelema moderni kaksikerroksinen pientalo tehoneliöillä.
Paikalla talonäytössä on talon suunnitellut Riinamari Välikangas Studio Rosberg ja Jämerän myyntiedustaja Timo Salo, TM Kivitalo Oy. Tule keskustelemaan kivitalon suunnittelusta ja rakentamisesta, sekä kysymään vinkkejä omaan talohankkeeseesi.
Ilmoittauduthan talonäyttöön, jotta osaamme varautua vierailijamäärään. Tarkemmat osoitetiedot saat ilmoittautumisen jälkeen.
Mukana talonäytössä: Jämerän myyntiedustaja, Timo Salo, timo.salo@jamera.fi, puh. 040 551 1817
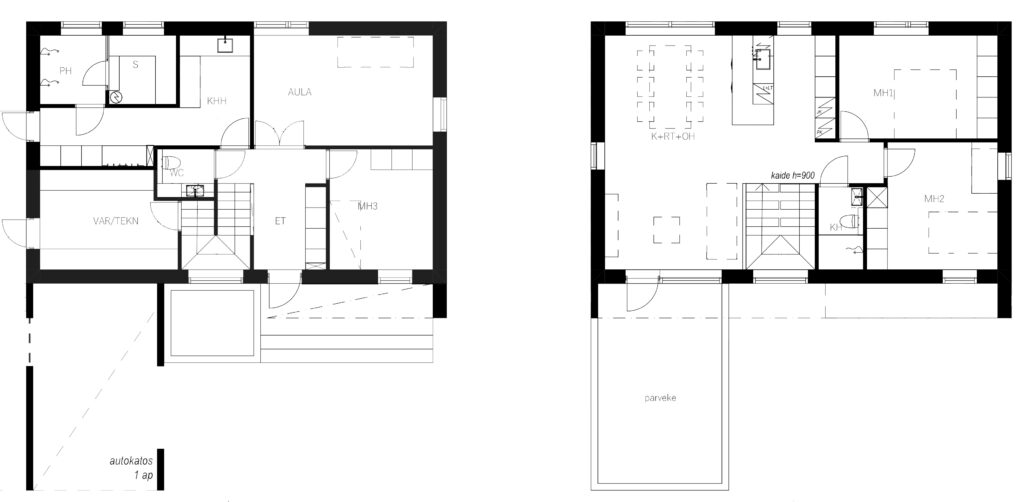
Pohjakuvat:

Julkisivu:

Syötä Kivitalolaskimeemme tarvittavat tiedot ja saat kuluarvion rakentamisen kokonaiskustannuksista.

Rakennetaan yhdessä unelmiesi kivitalo. Jätä yhteystietosi, niin olemme sinuun yhteydessä.
Rakennetaan yhdessä unelmiesi kivitalo.