Valmiusaste: Sisutus vaiheessa
Moderni kivitalo hyvällä paikalla – käytännöllistä asumista kahdessa kerroksessa
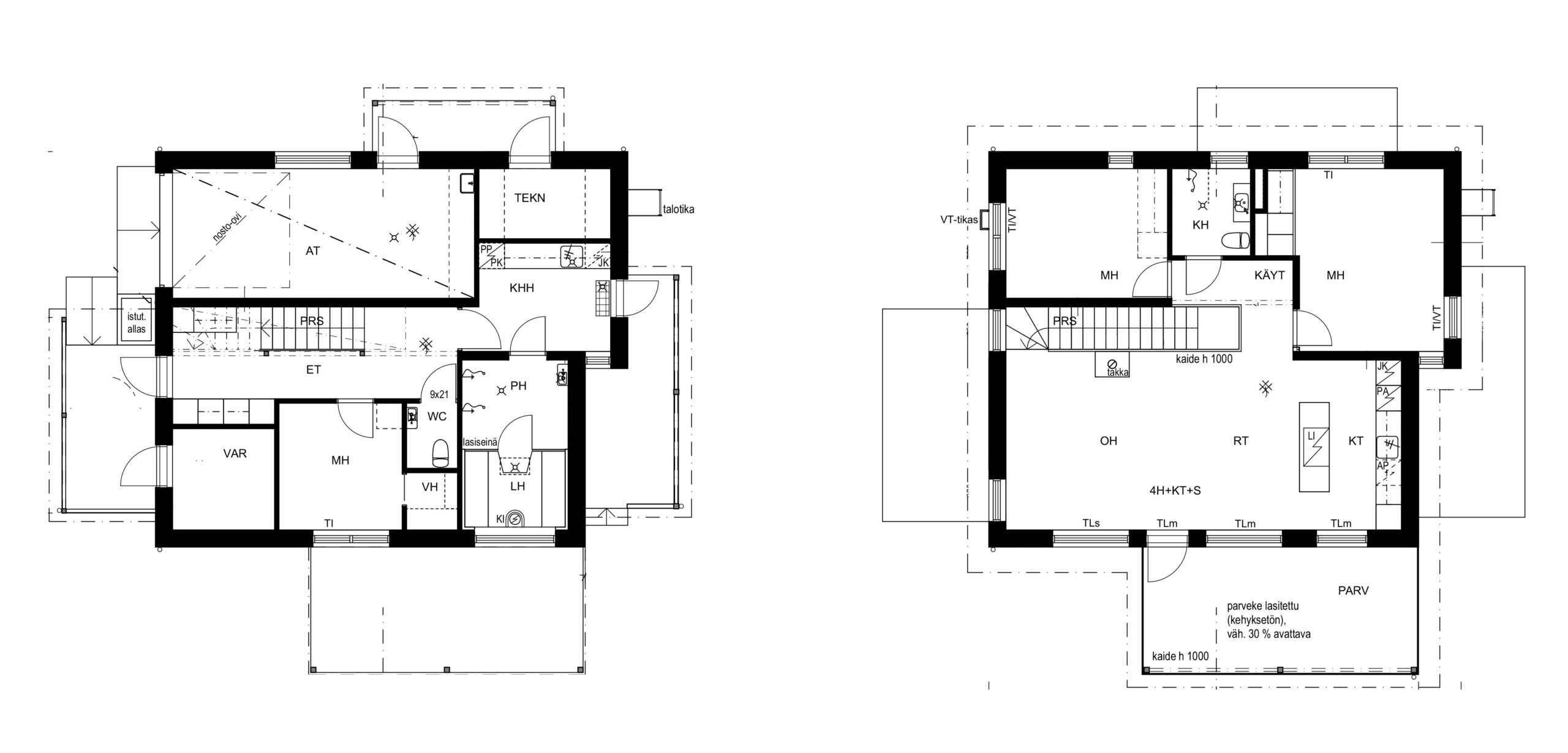
Esittelyssä Jämerä kivitalo Marjaniemessä – näyttävä ja moderni koti, jossa toimivat tilaratkaisut kohtaavat tyylikkään arkkitehtuurin. Tämä talo tarjoaa selkeät, käytännölliset tilat kahdessa kerroksessa.
Yläkerrassa sijaitsevat talon oleskelutilat: avara olohuone, keittiö ja ruokailutila muodostavat yhtenäisen ja valoisan kokonaisuuden. Tilasta on käynti isolle, lasitetulle parvekkeelle. Yläkerrasta löytyvät myös kaksi makuuhuonetta, kylpyhuone sekä erillinen wc.
Alakerrassa sijaitsee yksi makuuhuoneista, kodinhoitohuone, saunaosasto sekä viihtyisä oleskelutila. Arkea helpottavat erillinen varasto, tekninen tila sekä autotalli. Oma sisäänkäynti alakerrasta mahdollistaa monipuoliset käyttömahdollisuudet.
Tule paikan päälle tutustumaan – tämä kivitalo yhdistää laadukkaan rakentamisen, tyylikkyyden ja arjen sujuvuuden!
Mukana talonäytössä: Jämerän myyntiedustaja,
Heikki Rintala, puh. 040 086 1413, heikki.rintala@jamera.fi
Talonäytön ajankohta julkaistaan pian – pysy kuulolla!



Syötä Kivitalolaskimeemme tarvittavat tiedot ja saat kuluarvion rakentamisen kokonaiskustannuksista.

Rakennetaan yhdessä unelmiesi kivitalo. Jätä yhteystietosi, niin olemme sinuun yhteydessä.
Rakennetaan yhdessä unelmiesi kivitalo.