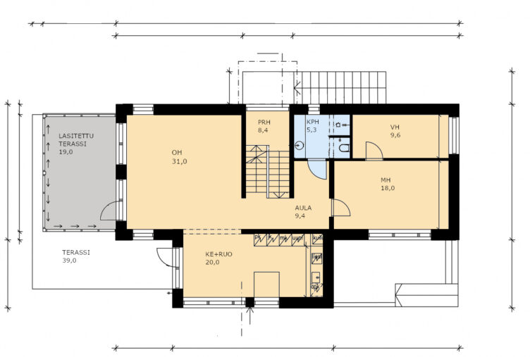
Jämerä Friisimäki on moderni ja avara omakotitalo, jossa yhdistyvät laadukkaat materiaalit ja selkeälinjainen arkkitehtuuri. Talon keskikerroksen oleskelu- ja ruokailutila tulvii luonnonvaloa suurten ikkunoiden ansiosta ja avautuu lasitetulle terassille, joka toimii ympäri vuoden lisätilana.
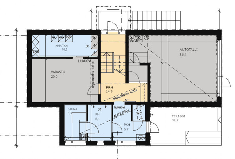
Yläkerran makuuhuoneet ja aulatila tarjoavat rauhaa ja toimivuutta, ja parveke tuo yhteyden ulkoilmaan. Alakerrassa sijaitsevat saunaosasto, kodinhoitotilat sekä runsaasti säilytystilaa, ja autokatos suojaa ajoneuvoja.
Jämerä Friisimäki on suunniteltu perheelle, joka arvostaa modernia estetiikkaa ja käytännöllisyyttä.
Jämerä Kivikoti-arkkitehti
Syötä Kivitalolaskimeemme tarvittavat tiedot ja saat kuluarvion rakentamisen kokonaiskustannuksista.

Rakennetaan yhdessä unelmiesi kivitalo. Jätä yhteystietosi, niin olemme sinuun yhteydessä.
Rakennetaan yhdessä unelmiesi kivitalo.