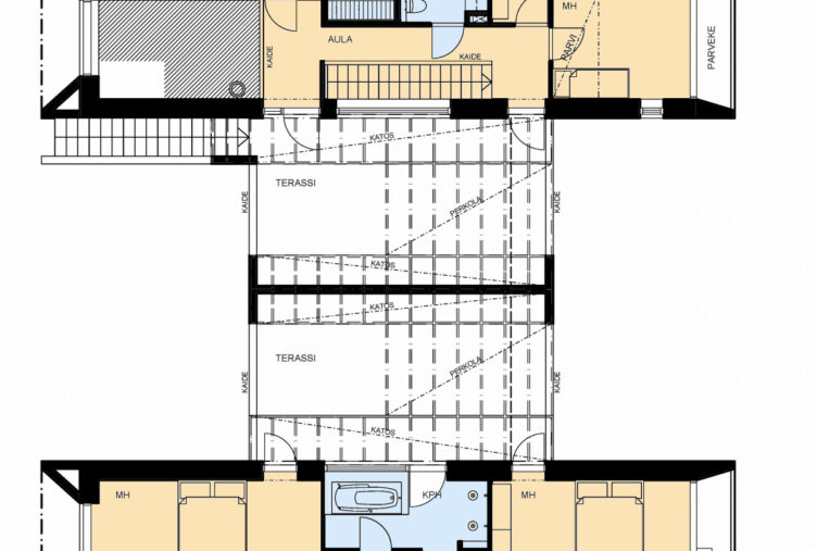
Jämerä Loft on moderni ja kompaktisti suunniteltu koti, jossa avaruus ja valoisuus ovat keskeisessä asemassa. Korkeat tilat ja suuret ikkunapinnat tuovat runsaasti luonnonvaloa sisään, luoden tyylikkään ja ilmavan tunnelman. Alakerrassa yhdistyvät saumattomasti olohuone, ruokailutila ja keittiö, kun taas yläkerrasta löytyy yksityisyyttä tarjoavat makuuhuoneet ja parvekkeelle avautuvat oleskelutilat.
Loftin muotoilu on rohkean selkeää ja toimivaa, tehden siitä täydellisen valinnan niin minimalistiseen kuin moderniin makuun. Tässä kodissa arkkitehtuuri ja käytännöllisyys yhdistyvät harmoniseksi kokonaisuudeksi.
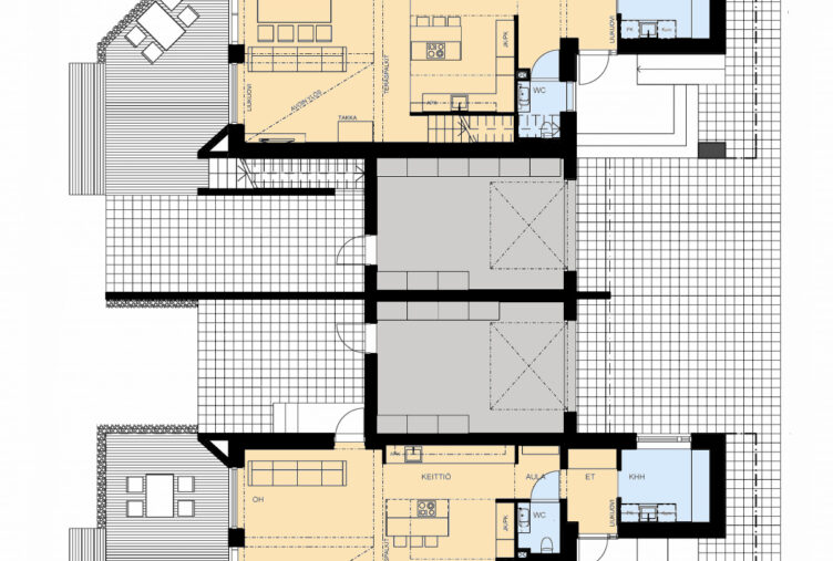
147 m² | 4h + avok/ruok. + khh + saunaos. + terassi + autalli/tekn.tila
Taloon on helppo tulla, sillä autotalli on sijoitettu sisäänkäynnin viereen ja sisäänkäyntiä suojaa kunnon katos. Autotallin päällä on suuri suojaisa terassi, jolle pääsee toisen kerroksen tiloista ja takapihalta portaikon kautta.
Eteisestä on kätevästi käynti tilaan, joka toimii kodinhoitohuoneena tai työtilana. Muilta osin alakerta on yhteistä tilaa, jolle valoa tuovat päädyn suuret ikkunat. Makuuhuoneet ja saunaosasto on sijoitettu yläkertaan. Kahdessa makuuhuoneessa on omat parvekkeet. Loistava pohjaratkaisu toimii myös pari-, rivi- ja townhousetalona.
Syötä Kivitalolaskimeemme tarvittavat tiedot ja saat kuluarvion rakentamisen kokonaiskustannuksista.

Rakennetaan yhdessä unelmiesi kivitalo. Jätä yhteystietosi, niin olemme sinuun yhteydessä.
Rakennetaan yhdessä unelmiesi kivitalo.
0800 309 210, myynti@jamera.fi