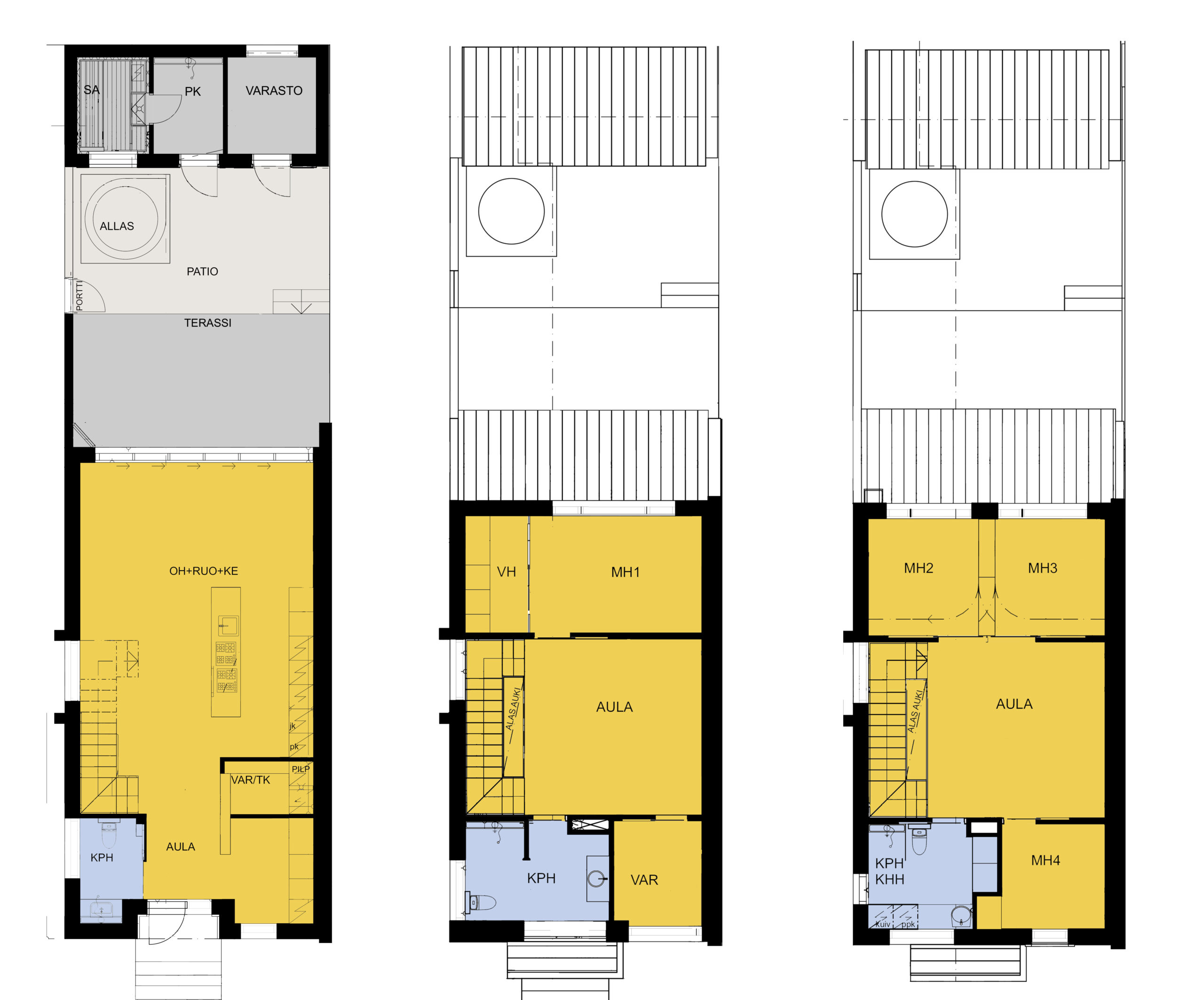
Kolmikerroksinen Jämerä Salmiakki esiteltiin Tuusulan asuntomessuilla 2020 ja on suomalais-englantilaisen perheen suunnittelema sekä rakennuttama townhouse. Perhe loi talon suunnitelmat 3D-mallinnusohjelman avulla ja kehitti ajatuksiaan etänä arkkitehti Kirsi Lehtosen kanssa, asuessaan Qatarissa. Salmiakin moderni ja tiivis arkkitehtuuri yhdistää tumman julkisivun ja lämpimän puuverhoilun, luoden tyylikkään kontrastin. Avarat oleskelutilat sijaitsevat ensimmäisessä kerroksessa, ja ylemmissä kerroksissa makuuhuoneet sekä rauhalliset lisähuoneet tarjoavat monipuoliset tilaratkaisut urbaaniin asumiseen.
Jämerä Salmiakki oli yksi Jämerän kahdentoista townhoustalon ryhmärakentamishankkeen taloista, jossa Jämerä huolehti mm. arkkitehtisuunnittelusta, rakennusluvista ja rakensi talot runkovalmiiksi perustuksista vesikattoon ikkunoineen ja ovineen. Tästä eteenpäin ryhmärakentajat teettivät yhdessä ulkorappaukset ja käyttivät osin samoja urakoitsijoita mm. LVIS-töissä. Muuttovalmiiksi Jämerä Salmiakki tehtiin projektinjohtopalvelun kautta.
Jämerä Kivikoti-arkkitehti
7h + k + ruok., 167 m2 + pihasauna/var.
Jämerän runkovalmis talotoimitus.
E-luku 94, energiatehokkuusluokka B, kokonaispäästö 105 tCO2e
Arkkitehti- ja sisustussuunnittelu: Anna ja John Hart, www.remotecontrol.live
Arkkitehtisuunnittelu ja pääsuunnittelija: Kirsi Lehtonen, arkkitehtitoimistoarte @ gmail.com
Rakennesuunnittelu: Aki Kananen, www.jamera.fi
LVIS-suunnittelu: Spigot Oy, www.spigot.fi
Valaistussuunnittelu: www.winled.fi
Arkkitehti Kirsi Lehtosen käsialaa on mm.Tuusulan 2020 asuntomessujen kaksitoista townhousetaloa, joista messuilla esiteltiin talot Jämerä Salmiakki ja Jämerä Laventeli.
Syötä Kivitalolaskimeemme tarvittavat tiedot ja saat kuluarvion rakentamisen kokonaiskustannuksista.

Rakennetaan yhdessä unelmiesi kivitalo. Jätä yhteystietosi, niin olemme sinuun yhteydessä.
Rakennetaan yhdessä unelmiesi kivitalo.