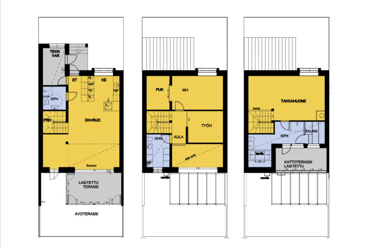
Vuonna 2016 valmistunut Kirsi Lehtosen suunnittelema townhouse erottuu iloisella ja rohkealla keltaisella julkisivullaan. Kolmeen kerrokseen jakautuva koti tarjoaa käytännölliset neliöt arkeen: alakerrassa avara olohuone ja ruokailutila yhdistyvät keittiöön sekä lasitettuun terassiin, toisessa kerroksessa sijaitsevat makuuhuone, työhuone ja pukeutumistila, ja ylimmässä kerroksessa nautitaan saunasta, takkahuoneesta sekä lasitetusta kattoterassista. Tämä townhouse yhdistää värikkään kaupunkimaisuuden ja toimivan kivitaloasumisen.
Jämerä Kivikoti-arkkitehti
oh, ruok, kt, et, wc/kph, tek/var, mh
1. kerros: noin 68 m² (oh+ruokailu, keittiö, eteinen, wc/kph, tekninen tila/varasto) + 15 m² lasitettu terassi + avoterassi
2. kerros: noin 43 m² (mh, työhuone, pukeutumistila, khh, aula)
Ullakkokerros: noin 33 m² (takkahuone, sauna, kph) + 10 m² lasitettu kattoterassi
Arkkitehti Kirsi Lehtosen käsialaa on mm.Tuusulan 2020 asuntomessujen kaksitoista townhousetaloa, joista messuilla esiteltiin talot Jämerä Salmiakki ja Jämerä Laventeli.
Syötä Kivitalolaskimeemme tarvittavat tiedot ja saat kuluarvion rakentamisen kokonaiskustannuksista.

Rakennetaan yhdessä unelmiesi kivitalo. Jätä yhteystietosi, niin olemme sinuun yhteydessä.
Rakennetaan yhdessä unelmiesi kivitalo.