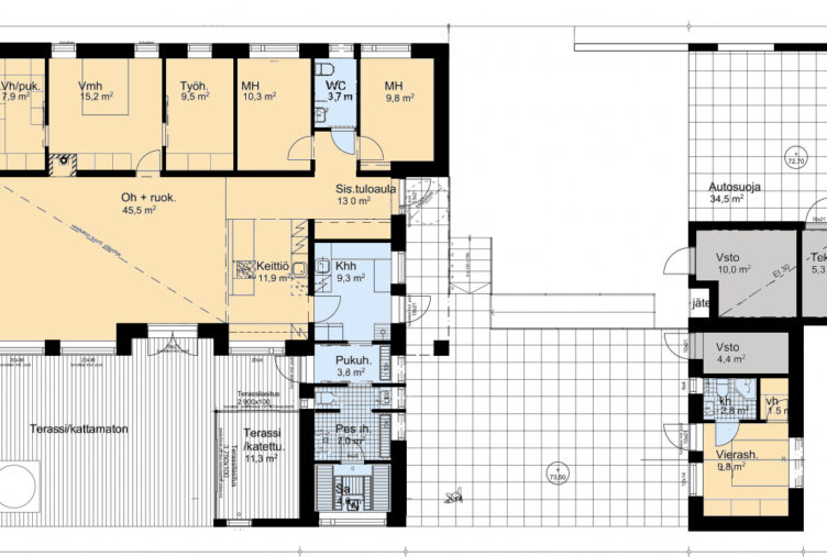
Jämerä Lakeuden Kutsu on moderni ja elegantti koti, joka kutsuu viihtymään avarien tilojen ja tyylikkään muotoilun pariin. Suuret ikkunat tulvivat luonnonvaloa sisään, ja olohuone-keittiö-yhdistelmä luo avaran tilan, joka soveltuu täydellisesti sekä arjen hetkiin että juhlatilaisuuksiin. Tilava terassi ja ulkoporeallas laajentavat oleskelutilaa ulos, ja pihapiirin suunnittelussa on otettu huomioon rentoutumisen mahdollisuudet.
Huonejärjestys on selkeä ja käytännöllinen: makuuhuoneet tarjoavat omaa rauhaa, kun taas kodinhoito- ja saunatilat löytyvät vaivattomasti asunnon toiselta puolelta. Tässä kodissa yhdistyvät tyyli ja toimivuus, luoden kokonaisuuden, jossa jokainen yksityiskohta on tarkkaan harkittu.
Syötä Kivitalolaskimeemme tarvittavat tiedot ja saat kuluarvion rakentamisen kokonaiskustannuksista.

Rakennetaan yhdessä unelmiesi kivitalo. Jätä yhteystietosi, niin olemme sinuun yhteydessä.
Rakennetaan yhdessä unelmiesi kivitalo.