Talo on sen rakennuttajan, Maria Pennasen, vahvasti visioima. Rakennuksen arkkitehtonisena tavoitteena on ollut luoda moderni, yksinkertainen massa, jossa toteutuu ajatus kahdesta päällekkäisestä kuutiosta. Kuutioajatusta korostetaan materiaalivalinnoin: alakerta on rapattuna ja yläkerta on puuverhouksella.
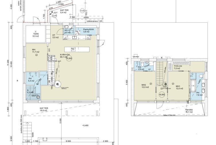
4h + avo k/ruok. + khh + 2kph + saunaos. + tekn.tila + terassi + parveke + autokatos + venevaja
Regaalienkatu 5, 07940 Loviisa
Huoneistoala 143 m2 / Kerrosala: 160 m2 + venevaja 20 m2
Rakennuttaja: Maria Pennanen, mindclip.com
Arkkitehtisuunnittelu: Maria Pennanen ja Riinamari Fagerström, studiorosberg.fi
Sisustussuunnittelu: Maria Pennanen ja Jenni Stockus/vepsäläinen.com
Rakennesuunnittelu: Jämerä Kivitalot Oy, DI Aki Kananen
Jämerän runkovalms talotoimitus
Energiatehokkuusluokka: A
E-luku: 76
Rakennuksen hiilijalanjälki 14,51 kg CO2e/hum2/a (Insinööritoimisto Vesitaito Oy)
Talotekniikka: Maalämpöpumppu vesikiertoinen lattialämmitys. Koneellinen ilmanvaihto LTO:lla
Talo sijaitsee merenrantatontilla ja sen jokaisesta asuinhuoneesta avautuvat näkymät merelle. Ensimmäisen kerroksen oleskelutilat jatkuvat talon levyisen ikkunaseinän ja liukuoven kautta terassille. Terassiin upotettu suuri uima-allas antaa kesäisin oman mielenkiintoisen valoefektinsä sisätiloihin. Makuuhuoneet ovat omassa rauhaan toisessa kerroksessa ja niiden yhteydessä on omat vaate- ja kylpyhuoneet, sekä käynti katetulle parvekkeelle. Päämakuuhuoneen yhteydessä on lisäksi erillinen työskentelyyn tarkoitettu rauhallinen tila.
Talon edessä suuri terassi, johon on upotettu uima-allas ja rantaan sijoittuu noin 20:n neliön kokoinen venevaja sekä laituri.
Syötä Kivitalolaskimeemme tarvittavat tiedot ja saat kuluarvion rakentamisen kokonaiskustannuksista.

Rakennetaan yhdessä unelmiesi kivitalo. Jätä yhteystietosi, niin olemme sinuun yhteydessä.
Rakennetaan yhdessä unelmiesi kivitalo.