Rantatontilla sijaitsevasta talosta haluttiin mahdollisimman monesta tilasta näkymät merelle ja vastarannan kaupunkisilhuettiin. Heti taloon sisään tullessa avautuvat näkymät merelle ja muutaman askelman sisääntuloa alempana ovat oleskelutilat: avokeittiö, olohuone ja ruokailu. Tilassa on valoa, ilmavuutta ja jatkuvuutta: viisto sisäkatto, lattiapinnasta kattoon olevat ikkunat ja liukulasioven kautta pääsy talon levyiselle hulppealle terassille.
Jämerä Kivikoti-arkkitehti
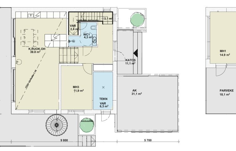
4h + avo k/ruok. + khh + 2wc + saunaos. + tekn.tila + terassi + parveke
Regaalienkatu 7, 07940 Loviisa
Huoneistoala: 137 m2 / Kerrosala: 159 m2
Jämerän runkovalmis talotoimitus
Rakennuttaja: Suvi ja Fredrik Kåll
Arkkitehtisuunnittelu: Jämerän Suunnittelupalvelu / Arkkitehti Anne Fagerholm, Arkkitehtuuritoimisto ANFA
Sisustussuunnittelu: Sanna Piitulainen, studiopiitulainen.fi
Rakennesuunnittelija: Jämerä Kivitalot Oy, DI Aki Kananen
Energiatehokkuusluokka: A
E-luku: 65
Rakennuksen hiilijalanjälki: 15,71 kg CO2e/hum2/a (Insinööritoimisto Vesitaito Oy)
Talotekniikka: Vesi-ilmalämpöpumppu, vesikiertoinen lattialämmitys. Koneellinen tulo- ja poistoilmanvaihtojärjestelmä lämmöntalteenotolla
Olen suunnitellut koteja asiakkaille jo 25 vuoden ajan – suuria ja pieniä, moderneja ja perinteisiä, jopa kartanotyylisiä. Toisin sanoen kaikenlaisia koteja, jotka ovat yhtä ainutlaatuisia kuin niiden asukkaat.
Suunnittelu on aina yhteistyötä asiakkaan ja arkkitehdin välillä. Lopputulokseen vaikuttavat asiakkaan toiveet, tontin ominaisuudet, rakennuspaikan ilmansuunnat sekä kaavamääräykset. Näiden elementtien yhdistäminen synnyttää kodin, joka on paitsi toimiva myös kaunis.
Jämerä-talo rakentuu kuin suuri legopalikkatalo – yksinkertaisesti ja selkeästi. Selkeys viehättää minua, ja sitä tukee myös harkkomateriaali, joka on yksiaineista kevytbetonia. Kevytbetonin selkeä rakennejärjestelmä tekee rakentamisesta sujuvaa, ja materiaali tarjoaa mahdollisuuksia luovuudelle, kuten erilaisten upotusten ja koristeellisten yksityiskohtien toteuttamiseen.
Olen kiitollinen jokaisesta asiakkaasta, joka on halunnut suunnitella kanssani oman kotinsa. On erityisen sydäntä lämmittävää, kun asiakas palaa luokseni toisen tai jopa kolmannen kerran aloittaakseen uuden yhteistyön. Tällaiset hetket kertovat, että olemme onnistuneet luomaan jotain merkityksellistä yhdessä.
Sauna from Finland -yhdistys valitsi Villa Stenin saunan yhdeksi asuntomessujen elämyksellisimmistä saunoista.
”Tälle saunalle sataa kiitoksia tavallisuudesta poikkeavasta ideasta ja toteutuksesta. Sauna sijaitsee talon toisessa kerroksessa ja sen erityispiirteenä on suuri ikkuna, josta avautuu upea maisema merelle ja terassille. Raati kehuu erityisesti kylpytilojen ja saunan sommittelua. Perheen kodissa saunominen on helppo ottaa osaksi jokapäiväistä elämää. Lauteet ovat kauniit ja pelkistetyt. Vilvoittelu onnistuu katetulla isolla terassilla.”
Syötä Kivitalolaskimeemme tarvittavat tiedot ja saat kuluarvion rakentamisen kokonaiskustannuksista.

Rakennetaan yhdessä unelmiesi kivitalo. Jätä yhteystietosi, niin olemme sinuun yhteydessä.
Rakennetaan yhdessä unelmiesi kivitalo.